一般住宅、店舗、ビル等の内外装工事、リフォーム、防音工事。建物や住宅の内装リフォームと外装リフォームなら(有)神山住建まで。

建築事例

建築事例

弊社では新築住宅の設計を承っております。
ライフスタイルに合わせた理想のすまい、一緒につくりませんか?

施工事例:入間市南峯新築事例

uid000001_20090310143553c3ca5d6d

入間市南峯の新築施工事例です。

当社で販売している、分譲住宅です。

uid000001_201001261314390dc4065d

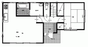
左:1F 平面図

uid000001_20100126132256da852d68

左:2F 平面図

お気軽にお問い合わせください。 TEL 04-2962-1591 受付時間 9:00~17:00(土・日・祝日除く)

PAGETOP
Copyright © 有限会社 神山住建 All Rights Reserved.